「一人ひとりが、輝く明日を。」をコミュニケーションワードに多彩な事業を展開する、新昭和。
そんな新昭和が、愛知県名古屋市港区(茶屋新田)において、複合商業施設「名古屋ちゃやまちモール」を2026年1月29日(木)にグランドオープンします。
新昭和「名古屋ちゃやまちモール」

「名古屋ちゃやまちモール」は、愛知県名古屋市港区に誕生する待望の複合商業施設です。
市南西部の新たな拠点として発展を続ける、茶屋新田区画整理地内に整備されます。
建物は平屋建て+屋上駐車場となり、スーパーマーケット「食生活♡♡ロピア」と、ドラッグストア「クリエイトSD」がオープンします。
施設概要
| 所在地 | 愛知県名古屋市港区川園1丁目65番 (愛知県名古屋市港区茶屋新田区画整理地内99街区1-2、99街区2) |
|---|---|
| 事業主 | 新昭和 |
| 敷地面積 | 8,432.55平方メートル(2,550.84坪) |
| 階数・構造 | 平屋建て・鉄骨造 |
| 駐車場 | 車 191台、東京インテリア家具 名古屋本店様共同駐車場 96台 |
| 建築面積 | 4,877.06平方メートル(1,475.31坪) |
| 延床面積 | 4,500.87平方メートル(1,361.51坪) |
| 設計 | アスク環境開発株式会社 |
| 施工 | 生川建設株式会社 |
| 開業 | 2026年1月29日オープン |
| 交通 | 名古屋第二環状自動車道「南陽」IC 約650m 名古屋臨海高速鉄道あおなみ線「荒子川公園」駅 約4,700m |
「名古屋ちゃやまちモール」は、商圏を3km圏内に絞った地域密着の商業施設となります。
周辺には、東京インテリア家具、イオンモール名古屋茶屋、スーパーセンタートライアル、ヤマダデンキ、ココス、ネクステージなど、様々な商業施設が展開しており、それらとのシナジー効果も期待されています。
また、新昭和が愛知県で手掛ける商業施設としては「あさひまちモール」に次ぐ2施設目となります。
地域の皆様の生活利便向上を図るために、地域密着スタイルを徹底した「毎日利用できる施設」として、スーパーマーケット、ドラッグストアなど、地域に必要な商業ニーズに特化した、利用価値の高い業態をコンパクトに集約させているのが特徴です。
同整理地内のコンセプトの1つ、「自然と触れ合える良好な居住環境の形成」を踏襲し、敷地内や屋上などの緑化も積極的に取り入れられた施設となります。
出店テナント
テナント数は2テナントです。
| 店舗名 | 業種 | 延床面積(店舗床面積) | 区画番号 | オープン日 |
|---|---|---|---|---|
| 食生活♡♡ロピア | スーパーマーケット | 2,665.68平方メートル(806.36坪) | (1) | 1月29日 |
| クリエイトSD | ドラッグストア | 1,236.02平方メートル(373.89坪) | (2) (3) | 1月29日 |
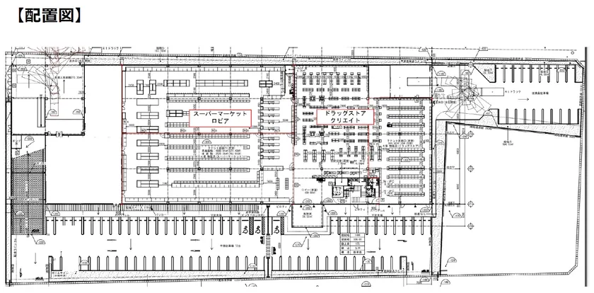
配置図・アクセス

施設の配置図です。

周辺の広域図。

施設周辺の詳細な地図です。
事業主:新昭和グループについて

新昭和グループは、新昭和として、ツーバイフォー工法が日本で認可された翌年にいち早く販売をスタートし、高い専門性と技術革新力で、末永く快適に暮らせる確かな住まいづくりに携わってきました。

2017年ホールディング体制へ移行後は、住まいだけでなく、環境、教育、健康に関する事業など、様々な分野に進出することで、みなさまの暮らしに寄り添いながら、より豊かで充実した暮らしをお届けできるようになりました。
これからもグループ一丸となって、皆様が安心・快適に暮らせる街づくりの実現へ取り組んでいきます。
アセット事業への取り組みについて

近年、不動産に関するニーズは「所有」から「運用」へと大きく変化しつつあり、「不動産アセット事業」への関心が高まってきています。
新昭和では創業以来培ってきた、地域ネットワークと優良テナント企業との密な情報交流を結びつけ、より豊かで潤いのある街づくりとなる《創出型のアセット事業》を今後も積極的に推進しています。

また、新昭和グループは、SDGsに参画しています。
スーパーマーケットとドラッグストアが集約された、毎日のお買い物に便利な複合商業施設です。
新昭和「名古屋ちゃやまちモール」の紹介でした。
新昭和「名古屋ちゃやまちモール」のよくある質問
Q. 「食生活♡♡ロピア」ではどんな商品が買えますか?
A. 「食生活♡♡ロピア」は、生鮮食品から日用品まで幅広い商品を取り扱っており、特に精肉の品揃えと品質に定評があります。
また、ロピアオリジナルの惣菜やパンなども人気です。
Q. 「クリエイトSD」では処方箋は受け付けてもらえますか?
A. クリエイトSDでは、処方箋の受付も可能です。
お薬の相談もできるので、お気軽にご利用ください。
Q. 駐車場は、土日祝日は混雑しますか?
A. 土日祝日は混雑が予想されます。
東京インテリア家具 名古屋本店との共同駐車場もご利用いただけますが、公共交通機関のご利用もご検討ください。